Проект жилого дома «Анна»
от 1 320 000 ₽
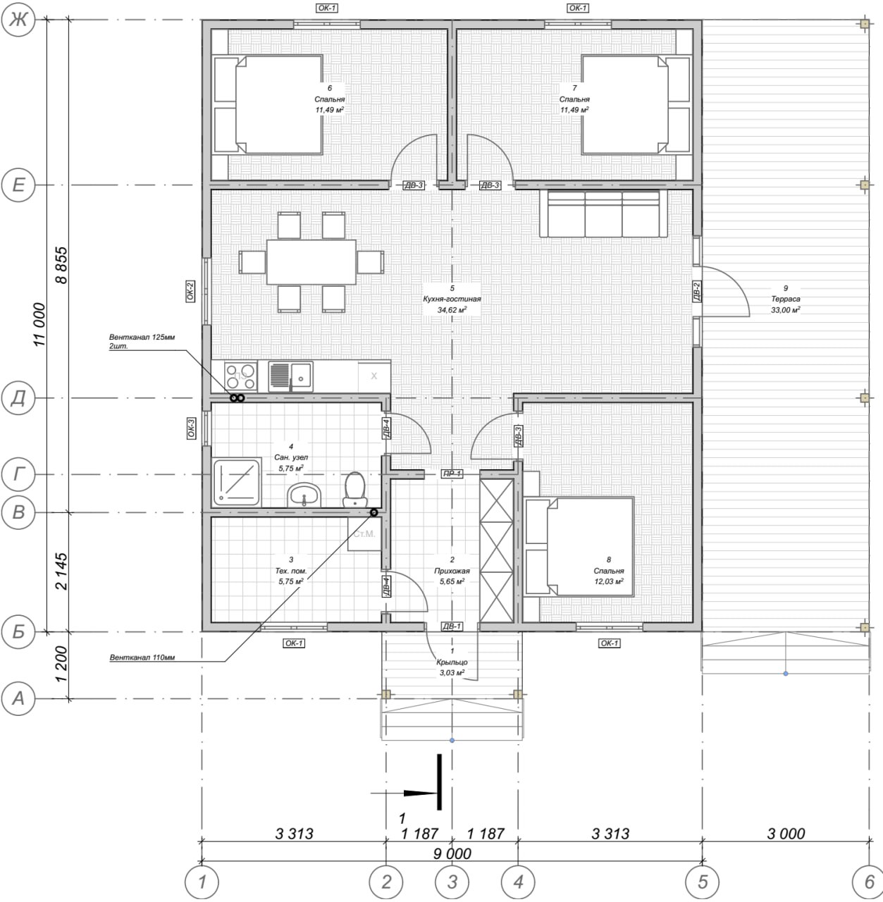
Дом из Сип-панелей, с удобной планировкой: терраса, прихожая, просторная кухня-гостиная, тех. помещение, с/у, 3 спальни. Общая площадь дома с крыльцом и террасой: 122,81 м2
Технические характеристики
Площадь
122,8 м²
Этажность
1 этаж
Габариты
12,0 x 11,0 м
Количество спален
3 спальни
Что входит в стоимость?
Теплый контур:
- Стены, перегородки и перекрытия: СИП-панель (174 мм)
- Брус и доска камерной сушки
- Крепеж и другие расходные материалы
Работы:
- Разработка проекта архитекторами компании ООО «Зевсресурс»
Что входит в стоимость?
Теплый контур:
- Фундамент: забивные Ж/б сваи
- Стены, перегородки и перекрытия: СИП-панель (174 мм)
- Брус и доска камерной сушки
- Крепеж и другие расходные материалы
Внешняя отделка:
- Кровля: гибкая черепица ТЕХНОНИКОЛЬ "Шинглас"
Работы:
- Разработка проекта архитекторами компании ООО «Зевсресурс»
- Монтаж дома бригадой компании ООО «Зевсресурс», включая расходные материалы
Что входит в стоимость?
Теплый контур:
- Фундамент: забивные Ж/б сваи
- Стены, перегородки и перекрытия: СИП-панель (174 мм)
- Брус и доска атмосферной сушки
- Крепеж и другие расходные материалы
Внешняя отделка:
- Кровля: гибкая черепица ТЕХНОНИКОЛЬ "Шинглас"
- Отделка фасадов: плитка фасадная "Хауберг" под кирпич
- Входная дверь: металлическая
- Окна: 2-х камерный стеклопакет, профиль 58 ммводосточная система
- Водосточная система
Интерьер и инженерия:
- Вентиляция: клапаны инфильтрации воздуха (КиВ)
Работы:
- Разработка проекта архитекторами компании ООО «Зевсресурс»
- Монтаж дома бригадой компании ООО «Зевсресурс», включая расходные материалы.
При заказе мансардная лестница с установкой в подарок!
Построены по этому проекту
Оставить заявку
Свяжитесь с нами и мы ответим на ваши вопросы.
Отправьте заявку и мы сами свяжемся с вами.





