Проект жилого дома «Лотос»
от 2 048 000 ₽
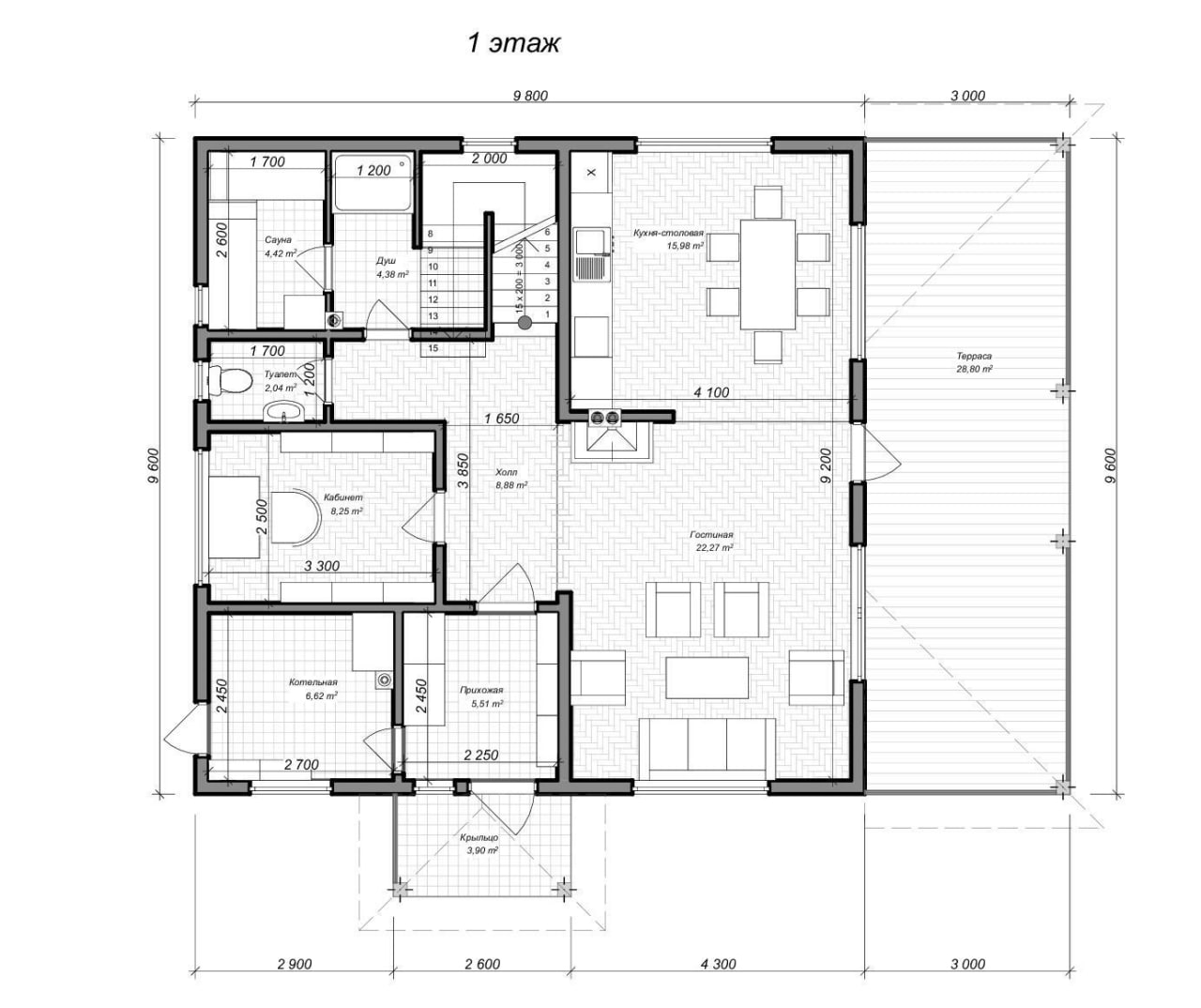
Дом из СИП-панелей, с удобной планировкой: кухня-столовая, терраса, туалет, 2 холла, душ, сауна, с/у, кабинет, котельная, прихожая, гардероб, 3 спальни, лоджия. Общая площадь дома (с террасой и крыльцом): 220,8 м2.
Технические характеристики
Площадь
220,8 м²
Этажность
2 этажа
Габариты
12,8 x 9,6 м
Количество спален
3 спальни
Что входит в стоимость?
Теплый контур:
- Стены, перегородки и перекрытия: СИП-панель (174 мм)
- Брус и доска камерной сушки
- Крепеж и другие расходные материалы
Работы:
- Разработка проекта архитекторами компании ООО «Зевсресурс»
Что входит в стоимость?
Теплый контур:
- Фундамент: забивные Ж/б сваи
- Стены, перегородки и перекрытия: СИП-панель (174 мм)
- Брус и доска камерной сушки
- Крепеж и другие расходные материалы
Внешняя отделка:
- Кровля: гибкая черепица ТЕХНОНИКОЛЬ
Работы:
- Разработка проекта архитекторами компании ООО «Зевсресурс»
- Монтаж дома бригадой компании ООО «Зевсресурс», включая расходные материалы
Что входит в стоимость?
Теплый контур:
- Фундамент: забивные Ж/б сваи
- Стены, перегородки и перекрытия: СИП-панель (174 мм)
- Брус и доска камерной сушки
- Крепеж и другие расходные материалы
Внешняя отделка:
- Кровля: гибкая черепица ТЕХНОНИКОЛЬ
- Входная дверь: металлическая с терморазрывом
- Окна: 2-х камерный стеклопакет, профиль 58 мм
- Водосточная система
Работы:
- Разработка проекта архитекторами компании ООО «Зевсресурс»
- Монтаж дома бригадой компании ООО «Зевсресурс», включая расходные материалы
Оставить заявку
Свяжитесь с нами и мы ответим на ваши вопросы.
Отправьте заявку и мы сами свяжемся с вами.





