Проект жилого дома «Мечта»
от 1 300 000 ₽
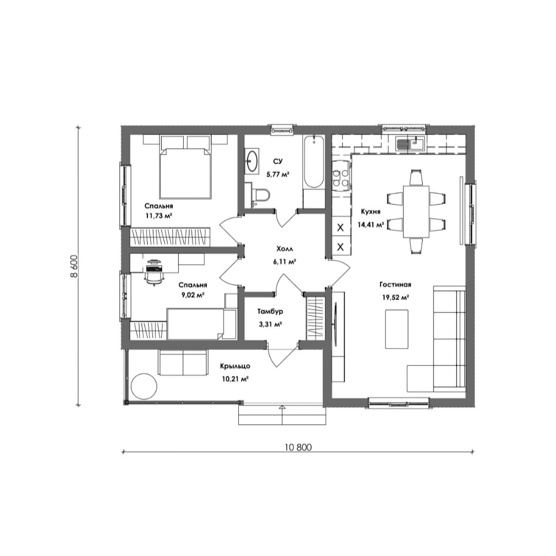
Дом из СИП-панелей с удобной планировкой: прихожая, холл, кухня-гостиная, крыльцо, с/у, 2 спальни, тамбур. Общая площадь: 92,88 м2
Технические характеристики
Площадь
92,9 м²
Этажность
1 этаж
Габариты
10,8 x 8,6 м
Количество спален
2 спальни
Что входит в стоимость?
Теплый контур:
- Стены, перегородки и перекрытия: СИП-панель (174 мм)
- Брус и доска камерной сушки
- Крепеж и другие расходные материалы
Работы:
- Разработка проекта архитекторами компании ООО «Зевсресурс»
Что входит в стоимость?
Теплый контур:
- Фундамент: забивные Ж/б сваи
- Стены, перегородки и перекрытия: СИП-панель (174 мм)
- Брус и доска камерной сушки
- Крепеж и другие расходные материалы
Внешняя отделка:
- Кровля: гибкая черепица ТЕХНОНИКОЛЬ "Шинглас"
Работы:
- Разработка проекта архитекторами компании ООО «Зевсресурс»
- Монтаж дома бригадой компании ООО «Зевсресурс», включая расходные материалы
Что входит в стоимость?
Теплый контур:
- Фундамент: забивные Ж/б сваи
- Стены, перегородки и перекрытия: СИП-панель (174 мм)
- Брус и доска камерной сушки
- Крепеж и другие расходные материалы
Внешняя отделка:
- Кровля: гибкая черепица ТЕХНОНИКОЛЬ "Шинглас"
- Отделка фасадов: плитка фасадная "Хауберг" под кирпич
- Входная дверь: металлическая с терморазрывом
- Окна: 2-х камерный стеклопакет, профиль 58 мм
- Водосточная система
Интерьер и инженерия:
- Вентиляция: клапаны инфильтрации воздуха (КиВ)
Работы:
- Разработка проекта архитекторами компании ООО «Зевсресурс»
- Монтаж дома бригадой компании ООО «Зевсресурс», включая расходные материалы.
Оставить заявку
Свяжитесь с нами и мы ответим на ваши вопросы.
Отправьте заявку и мы сами свяжемся с вами.







