Проект жилого дома «Тренд»
от 1 850 000 ₽
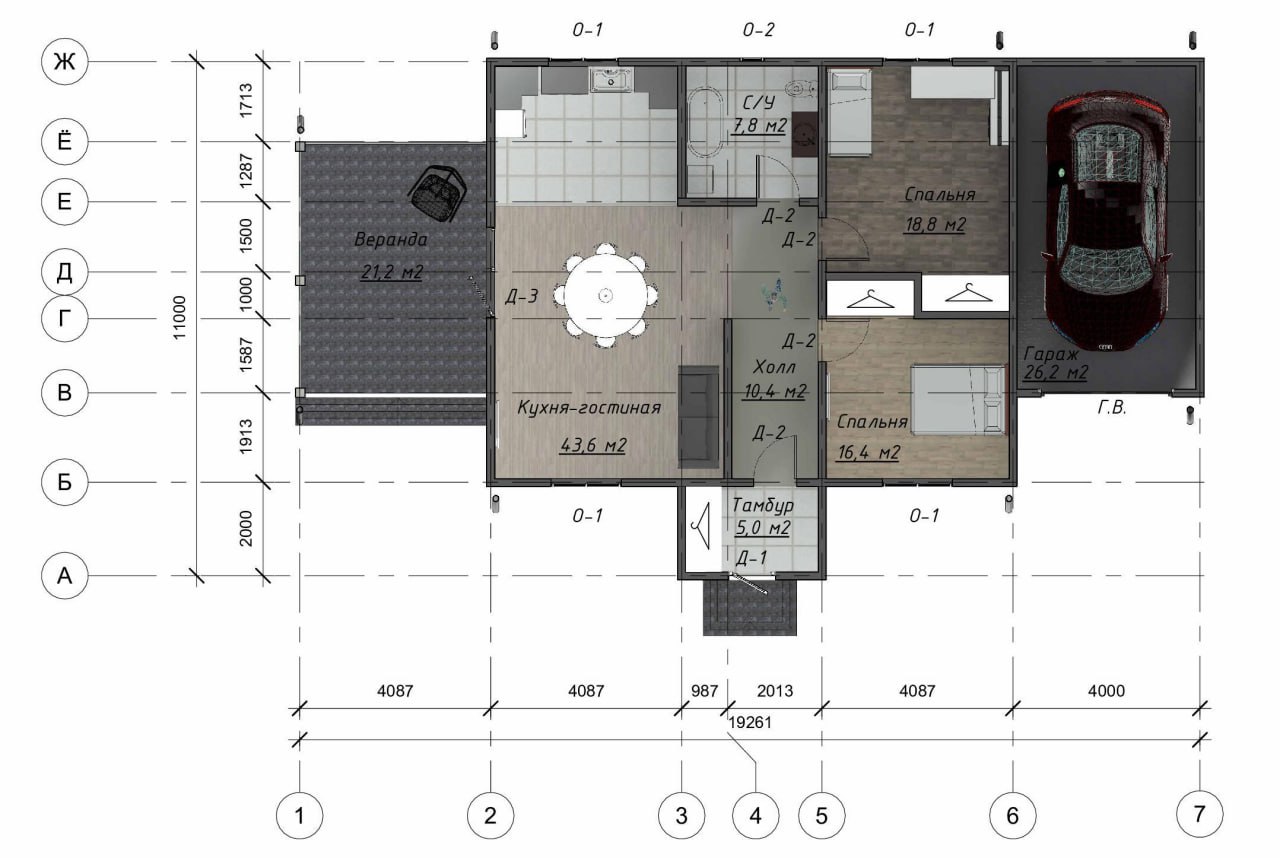
Дом из СИП-панелей, с удобной планировкой: кухня-гостиная, веранда, холл, тамбур, 2 спальни, гараж, с/у. Общая площадь дома (с верандой, тамбуром, гаражом): 155,3 м2.
Технические характеристики
Площадь
155,3 м²
Этажность
1 этаж
Габариты
19,3 x 11,0 м
Количество спален
2 спальни
Что входит в стоимость?
Теплый контур:
- Стены, перегородки и перекрытия: СИП-панель (174 мм)
- Брус и доска камерной сушки
- Крепеж и другие расходные материалы
Работы:
- Разработка проекта архитекторами компании ООО «Зевсресурс»
Что входит в стоимость?
Теплый контур:
- Фундамент: забивные Ж/б сваи
- Стены, перегородки и перекрытия: СИП-панель (174 мм)
- Брус и доска камерной сушки
- Крепеж и другие расходные материалы
Внешняя отделка:
- Кровля: гибкая черепица ТЕХНОНИКОЛЬ
Работы:
- Разработка проекта архитекторами компании ООО «Зевсресурс»
- Монтаж дома бригадой компании ООО «Зевсресурс», включая расходные материалы
Что входит в стоимость?
Теплый контур:
- Фундамент: забивные Ж/б сваи
- Стены, перегородки и перекрытия: СИП-панель (174 мм)
- Брус и доска камерной сушки
- Крепеж и другие расходные материалы
Внешняя отделка:
- Кровля: гибкая черепица ТЕХНОНИКОЛЬ
- Входная дверь: металлическая с терморазрывом
- Окна: 2-х камерный стеклопакет, профиль 58 мм
- Водосточная система
Работы:
- Разработка проекта архитекторами компании ООО «Зевсресурс»
- Монтаж дома бригадой компании ООО «Зевсресурс», включая расходные материалы
Оставить заявку
Свяжитесь с нами и мы ответим на ваши вопросы.
Отправьте заявку и мы сами свяжемся с вами.









